T160 - G3 Max
Praktfull stavlafthytte
med 4 soverom
24.500.000,-
Plantegninger og fasader
Status
Pris
Gulvareal
Tomt m²
Soverom
Bad
Sauna
Ja
TV-stue
Ja
FAKTA
- BYA: 128,6 m2
- BRA-i: 228,1 m2
- BRA-e: 2,5 m2
- 62,1 m2 terrasse
- 4 soverom (2 med eget bad)
- TV-stue
- 8 sengeplasser
- 4 bad
- Peis
- Sauna
- 4,3 m2 utvendig bod
- Garasje 59,3 m2
- Møbler og styling
Pris
24.500.000,-
Romslig hall med god oppbevaringsplass og gjestetoalett. Utvendig adkomst til bod ved siden av entréen. Fra hallen er det adkomst til en stor, velutstyrt kjøkkenavdeling med utgang til terrasse. Den åpne løsningen fører videre til en romslig stue som har peis, god takhøyde og store vindusflater som gir utsikt utover dalen. Innenfor stuen ligger to soverom og et flislagt bad med sauna. Hovedsoverommet har utgang til terrasse.
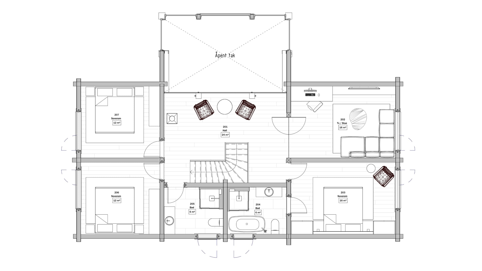
Andre etasje har et flislagt bad, en praktisk bod, to soverom, stue og TV-stue med ekstra sengeplasser. Store vinduer i TV-stuen og en glassvegg med glassdør ut til stuen gir en åpen romfølelse og slipper inn mye lys.
*Bildene er kun til inspirasjon. Interiøret og møblene i huset som er til salgs kan variere.
Et prosjekt av
