T158 - G4
Praktfull stavlafthytte
med 4 soverom
15.950.000,-
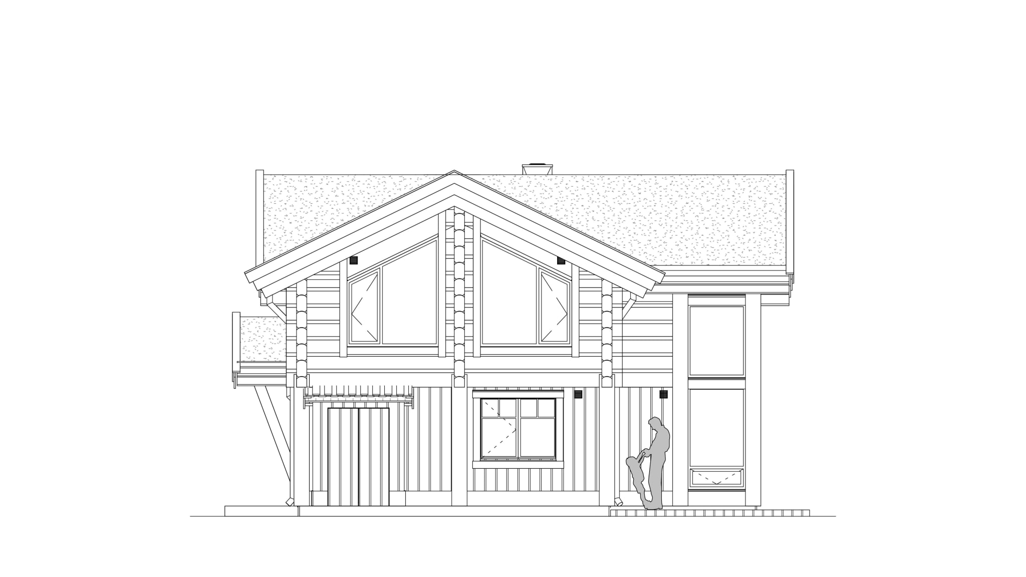
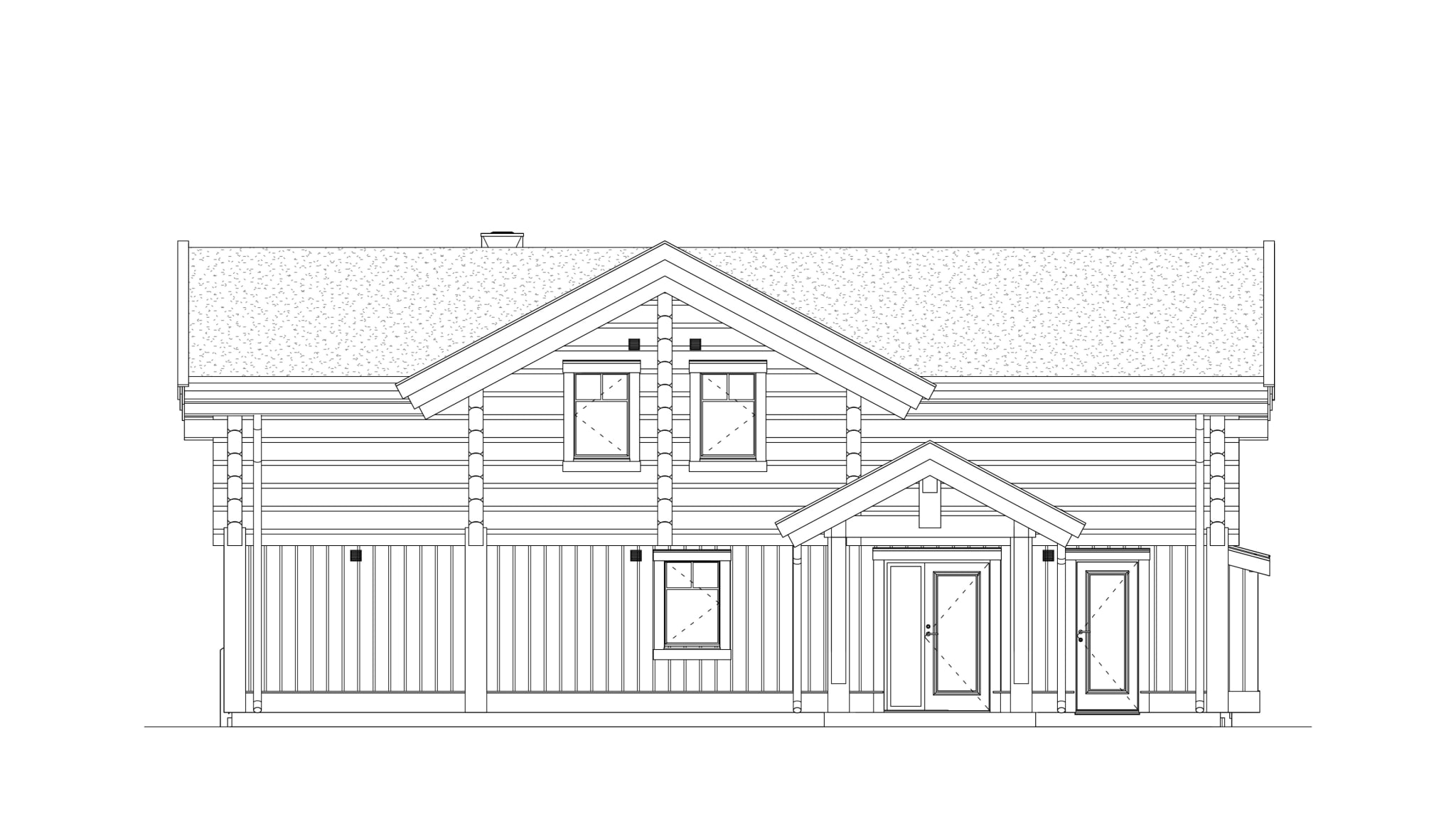
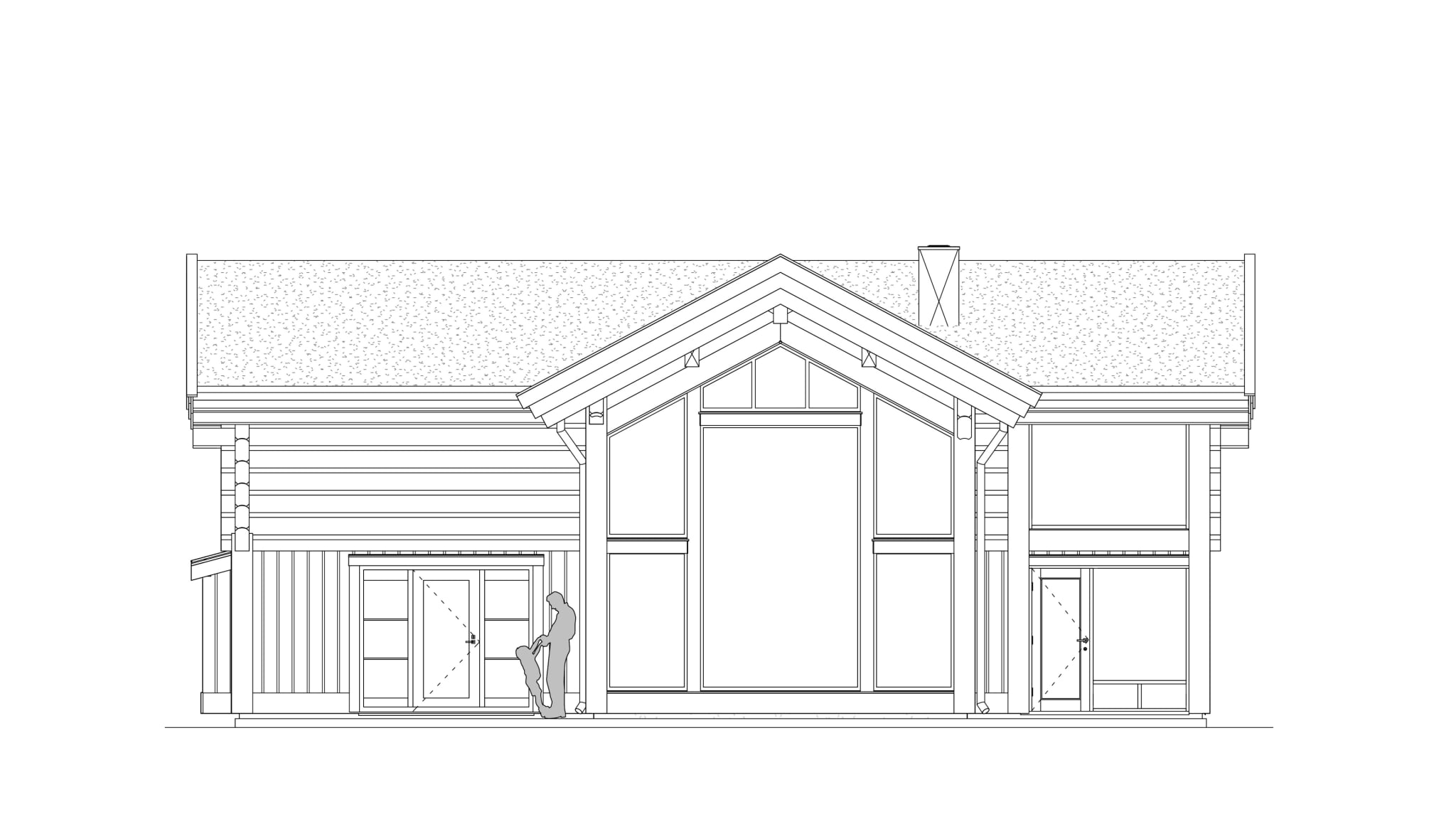
Plantegninger og fasader
Status
Ledig
Pris
15 950 000
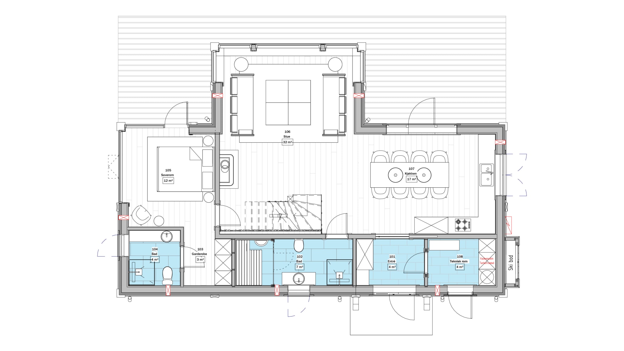
Gulvareal
178.27
Tomt m²
923 m2
Soverom
4 (2 eget bad)
Bad
4
Sauna
Ja
TV-stue
Ja
FAKTA
- BYA: 100,0 m2
- BRA: 178,27 m2
- 38,4 m2 terrasse
- 4 soverom (2 eget bad)
- TV stue
- 8 sengeplasser
- 4 bad
- Peis
- Sauna
- 0,55 m2 utvendig bod
Pris fra
15.950.000,-
Romslig hall med god oppbevaringsplass og gjestetoalett. Utvendig adkomst til bod ved siden av entréen. Fra hallen er det adkomst til en stor, velutstyrt kjøkkenavdeling med utgang til terrasse. Den åpne løsningen fører videre til en romslig stue som har peis, god takhøyde og store vindusflater som gir utsikt utover dalen. Innenfor stuen ligger to soverom og et flislagt bad med sauna. Hovedsoverommet har utgang til terrasse.
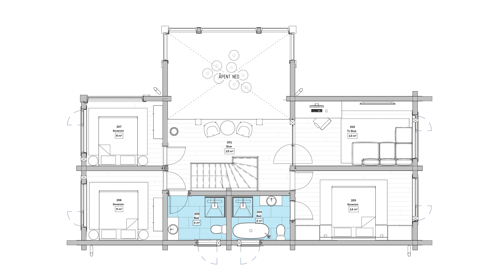
Andre etasje har et flislagt bad, en praktisk bod, to soverom, stue og TV-stue med ekstra sengeplasser. Store vinduer i TV-stuen og en glassvegg med glassdør ut til stuen gir en åpen romfølelse og slipper inn mye lys.
Et prosjekt av
